Casa a Schiera in Vendita a Montagnana - Spazio e Tranquillità
Rif.1339 | 210 mq | € 65.000
Descrizione
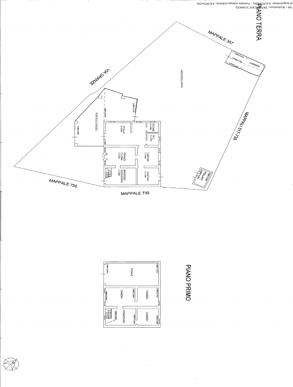
Scoprite questa affascinante porzione di testa di casa a schiera, situata nel tranquillo comune di Montagnana. Con una superficie complessiva di 210 mq, l'immobile si sviluppa su due livelli ed è circondato da un ampio scoperto privato.
Questa soluzione abitativa ante '67 offre la possibilità di essere personalizzata secondo le vostre esigenze. Al piano terra troverete un accogliente ingresso che conduce alla cucina soggiorno, ideale per momenti conviviali con la famiglia. Il bagno necessita di ristrutturazione; tuttavia, tutti i materiali necessari sono già disponibili sul posto. Completano il piano terra una cantina utile per lo stoccaggio e un disbrigo spazioso, oltre a un grande porticato chiuso perfetto per godere dell'aria aperta.
Salendo al primo piano, scoprirete tre camere da letto luminose e confortevoli che possono ospitare anche nuclei familiari numerosi o coloro che desiderano vivere immersi nella natura. Inoltre, c'è un sottotetto molto spazioso utilizzabile come ulteriore area living o ripostiglio.
La proprietà include anche la possibilità acquistare circa 3000 mq di terreno adiacente, offrendo così infinite opportunità per giardinaggio o attività all'aperto.
Montagnana è conosciuta non solo per il suo patrimonio storico ma anche per i suoi paesaggi incantevoli e la tranquillità della vita rurale. Qui avrete accesso facile ai servizi locali senza rinunciare alla serenità del vivere in periferia.
Non perdete l'occasione unica di visitare questo immobile! Contattate subito il nostro ufficio per ulteriori informazioni.
Dettagli
| Prezzo: | € 65.000 |
| Metri quadri: | 210 mq |
| Classe energetica: |
I.P.E. in fase di definizione |
| Comune: | Montagnana |
| Data inserimento: | |
| Data ultima modifica: |









